- Woonoppervlakte
- Circa 81 m²
- Inhoud
- Circa 270 m³
- Object type
- Portiekflat, appartement
- Aantal kamers
- 4 kamers (3 slaapkamers)
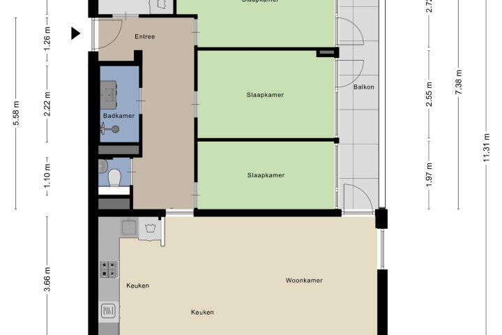
Wonen waar binnen en buiten elkaar ontmoeten? Dat kan aan Schotlandstraat 262. Dit lichte 4-kamer appartement van circa 82 m² op de vierde verdieping met een ruim balkon op het zuiden, biedt u drie slaapkamers en twee balkons.
Ideaal om de zon te vangen, een boek te lezen of te genieten van een diner buiten.
De open en lichte woonkamer voelt royaal en uitnodigend, terwijl de keuken en badkamer klaarstaan om uw persoonlijke touch te krijgen.
Haarlem-Schalkwijk is een groene wijk met een fijne mix van gezinnen en jonge professionals. Winkels, scholen, huisarts en sportvoorzieningen liggen om de hoek en met de fiets bent u in een paar minuten in het bruisende centrum van Haarlem.
Hier combineert u het gemak van stad en voorzieningen met een rustige, leefbare omgeving.
Hoogtepunten van dit appartement:
• Circa 82 m² woonoppervlak met slimme indeling
• 3 slaapkamers voor comfort en flexibiliteit
• 2 balkons voor ontspanning en buitenleven
• Veel daglicht dankzij grote ramen, inclusief hoekraam
• Rustige, groene straat met voorzieningen dichtbij
• Ideale combinatie van stad en rust
• VvE bijdrage €340 p.m. (incl. blokverwarming)
• Energielabel C
• Perfecte bereikbaarheid: uitstekend openbaar vervoer
Deze woning aan de Schotlandstraat 262 ligt ideaal ten opzichte van het openbaar vervoer. Op enkele minuten loopafstand bevinden zich meerdere haltes van buslijn 73 (Engelandlaan, Londenstraat, Amelandstraat). Met deze lijn bent u snel bij Haarlem Station, richting Castricum of Schalkwijk Centrum. Ook buslijn 3 (Kloosterstraat) en lijn 2 (Victor van Vrieslandstraat) bieden directe verbindingen naar IJmuiden, Haarlem Station en omliggende wijken.
Daarnaast ligt het NS-station Haarlem op slechts 2,5 km afstand, met snelle treinverbindingen naar grote steden als Amsterdam, Utrecht en Den Haag. Of u nu dagelijks pendelt, de stad intrekt of u ergens anders naartoe reist—de bereikbaarheid is hier top.
Schotlandstraat 262 is een plek waar u zich direct thuis voelt, met licht, ruimte en buitenmomenten die uw dagelijks leven verrijken.
Overdracht
- Vraagprijs
- € 375.000 k.k.
- Status
- Verkocht
- Aanvaarding
- In overleg
- Bijdrage VvE
- € 340 p/m
Bouw
- Object type
- Portiekflat, appartement
- Soort bouw
- Bestaande bouw
- Soort dak
- Plat dak bedekt met bitumineuze dakbedekking
Oppervlakte en inhoud
- Woonoppervlakte
- 81 m²
- Inhoud
- 270 m³
- Overige inpandige ruimte
- 2 m²
- Gebouwgeb. buitenruimte
- 11 m²
Indeling
- Aantal kamers
- 4 kamers (3 slaapkamers)
- Aantal badkamers
- 1 badkamer
- Badkamervoorzieningen
- Wastafel, wastafelmeubel, inloopdouche
- Aantal woonlagen
- 1 woonlaag
Energie
- Energielabel
- C
- Energielabel registratie
- 26-08-2025
- Verwarming
- Blokverwarming
- Warm water
- Geiser eigendom
Buitenruimte
- Ligging
- In woonwijk
- Tuin
- Geen tuin
Garage
- Soort garage
- Geen garage
Parkeergelegenheid
- Soort parkeergelegenheid
- Openbaar parkeren
VvE checklist
- Inschrijving KvK
- Ja
- Jaarlijkse vergadering
- Ja
- Periodieke bijdrage
- Ja, € 340 p/m
- Reservefonds aanwezig
- Ja
- Onderhoudsplan
- Ja
- Opstalverzekering
- Ja
Energieverbruik in Haarlem
Energielabel deze woning
Energielabel C
Publicatie energielabel: 26-08-2025
Stroomverbruik per jaar
(Gemiddelde appartement in Haarlem)
Gasverbruik per jaar
(Gemiddelde appartement in Haarlem)
* Cijfers zijn afkomstig van het CBS en bedoeld als indicatie en kunnen verschillen voor deze woning
Indicatie hypotheeklasten
Eigen inleg:
Spaargeld / overwaarde
Rente:
Laagste 10-jaars rente
Laagste 10-jaars rente
2,75% - Centraal Beheer Groen... - NHG
3,04% - Argenta Groen Hypothee... - 80%
Laagste 20-jaars rente
3,18% - Argenta Groen Hypothee... - NHG
3,39% - Argenta Groen Hypothee... - 80%
Laagste 30-jaars rente
3,35% - Argenta Groen Hypothee... - NHG
3,56% - Argenta Groen Hypothee... - 80%
Hypotheek:
Bruto maandlasten: € 0 p/m
Netto maandlasten: € 0 p/m
Hoe berekenen we dit?
Het rentepercentage is gebaseerd op de laagste 10 jaars vaste rente voor één hypotheekdeel. De vermelde rente (2.75% met NHG) is gecontroleerd op 11-11-2025. Deze berekening is gebaseerd op een annuïteitenhypotheek die volledig wordt afgelost, waarbij de maandlasten gedurende de gehele looptijd gelijk blijven. De werkelijke rente en netto maandlasten kunnen variëren, afhankelijk van uw persoonlijke situatie en de hypotheekverstrekker. Raadpleeg een financieel adviseur voor een nauwkeurige berekening en advies. Aan deze berekening kunnen geen rechten worden ontleend; het dient enkel als indicatie.
Documentatie
Kadastrale kaart
Leefomgeving
BAG uittreksel
Brochure
10-energielabel
11-vragenlijst-b
12-lijst-van-zaken
13-milieurapport
Overig-verontreiniging
4-eigendomsinformatie-haarlem-q-1120-a15
5-kadastrale-kaart
7-akte-van-levering
8-vve-begroting
8-1-splitsingsakte-d-d-03-11-1978-3
8-3-vve-notulen-9-oktober-2023-10
8-3-vve-notulen-18-juni-2024
8-4-mjop-schotlandstraat-2024-2033
8-4-mjop-schotlandstraat-2020-2029
8-5-begroting-2025
8-5-jaarverslag-2023
8-6-polis-opstalverzekering
8-6-sub-polis-opstal
1-meetrapport
WOZ waarderapport
Plattegronden PDF
Bezichtiging
Bod uitbrengen
Waardebepaling
Zoekopdracht
Alles downloaden
Zonnegrenzen bekijken
Op de kaart
Inwoners in Haarlem
Cijfers voor postcodegebied 2034
- Totaal aantal inwoners
- 10175 inwoners
- Mannen
- 49%
- Vrouwen
- 51%
Inwoners in Haarlem
Cijfers voor postcodegebied 2034
- tot 15 jaar
- 15%
- 15 tot 25 jaar
- 10%
- 25 tot 35 jaar
- 28%
- 45 tot 65 jaar
- 27%
- 65 en ouder
- 20%
Huishoudens in Haarlem
Cijfers voor postcodegebied 2034
- Eenpersoons zonder kinderen
- 51%
- Meerpersoons zonder kinderen
- 21%
- Huishoudens zonder kinderen
- 72%
Huishoudens in Haarlem
Cijfers voor postcodegebied 2034
- Huishoudens met één kind
- 9%
- Huishoudens met meerdere kinderen
- 19%
- Huishoudens met kinderen
- 28%
Woningen in Haarlem
Cijfers voor postcodegebied 2034
- Woningen voor 1945
- 1%
- Woningen tussen 1945 en 1965
- 20%
- Woningen tussen 1965 en 1975
- 49%
- Woningen tussen 1975 en 1985
- 5%
- Woningen tussen 1985 en 1995
- 12%
Woningen in Haarlem
Cijfers voor postcodegebied 2034
- Woningen tussen 1995 en 2005
- 2%
- Woningen tussen 2005 en 2015
- 10%
- Woningen na 2015
- 2%
- Huurwoningen
- 60%
- Koopwoningen
- 40%
Overige in Haarlem
Cijfers voor postcodegebied 2034
- Gemiddelde WOZ waarde
- € 234.000,-
- Personen onder de 65 met uitkering
- 13%
Overige in Haarlem
Cijfers voor postcodegebied 2034
- Adressen per km²
- 3458
- Stedelijkheid (schaal 1 op 5)
- 100%
Korte feiten over Haarlem
Haarlem is een stad en gemeente in Nederland en de hoofdstad van de provincie Noord-Holland. De stad ligt aan de rivier het Spaarne en in de regio Zuid-Kennemerland.
Waar staat PMA Meerstad voor?
Als je met ons samenwerkt, werk je met een team dat jouw wensen en behoeften voorop stelt. In de afgelopen 6 jaar hebben we veel ervaring opgedaan in het kopen, verhuren en beheren van woningen door heel Nederland en willen dit graag met jou delen. Professioneel, toegewijd en gefocust op jou als klant.
Nieuwste reviews
-
Surinamepad 232
Bas is kundig, betrokken en zeer prettig in de omgang, heeft een dijk aan ervaring en een goed netwerk, neemt de tijd voor je als klant en i...
-
Briljantstraat 230
Wij hebben alles uit handen kunnen geven aan Kees van PMA Makelaars. Kees heeft alles zorgvuldig opgepakt en een snelle verkoop werd daardoo...
-
Gasthuisvest 7
Goede service en alles perfect geregeld! Op kantoor ontvangen en alles duidelijk doorgesproken en ook een huurder was zo geregeld.